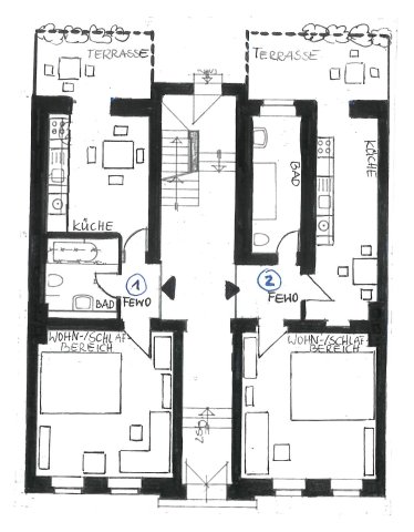
Grundriss